Обяви 0 За нас Контакти
Продава КЪЩА
град София, Драгалевци
670 000 €
1 310 406.10 лв.

(2 204 €, 4 310.65 лв./m2)
Цената е без ДДС
История на цената
Коригирана в 9:27 на 6 април, 2026 год.
Обявата е посетена 21 пъти.
Площ:
304 m2
Двор:
230 m2
Етаж:
1 от 3
Газ:
ДА
Строителство:
Тухла, Ще бъде въведен в експлоатация 2026 г.

Описание на имота:


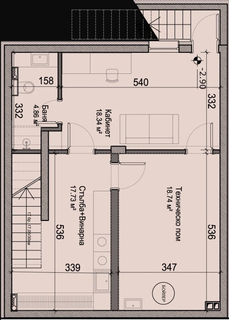
Бутиков затворен комплекс от 6 еднофамилни къщи.Намира се в района на Киноцентър I част , на терен от 2 137 кв.м.Къщата е на четири етажа, от които три надземни жилищни и един полуподземен етаж ,като при конкретната къща полуподземното ниво е с английски прозорец и възможност за фитнес/изба/стаи, а две паркоместа са осигурени на кота терен със самостоятелен достъп директно от улицата.Разполага с: обширна дневна с трапезария и кухня; 4 спални и работен кабинет и/или гардеробно помещение, 3 бани с WC и отделна WC за гости до дневната; мокро помещение за пералня, сушилня и гладачна маса; складови помещения; техническо помещение; тераси с чудесни гледки към Витоша и към София; самостоятелен двор с декинг за барбекю зона;Светла височина на приземен етаж е 2,90 м., на останалите жилищни етажи е 2,70 м., а на подземния етаж е 2,60 м.Зидария с преграждащи стени от керамични тухли Wienerberger Porotherm 25 P+F.Двойна хидроизолация и 8 см. XPS в зоната на сутерена и приземния етаж, както и 20см EPS в зоните на останалите надземни етажи.Дограмата е алуминиева, с трислоен стъклопакет и прекъснат термо-мост Schüco Window System AWS 75 BS.HI+ (Block System High Insulation) и Schüco ASE 80. За огледи 0988870990

Особености
Тухла
С паркинг
В затворен комплекс
За контакт:
0988870990
Агенция:
РИЪЛ ИСТЕЙТ ЕЛ ЕКС
0879383788
РИЪЛ ИСТЕЙТ ЕЛ ЕКС logo
Медал за прослужено време
В imot.bg от 2008 г.
reallx.imot.bg
Адрес:
област София, гр. София, гр. София, бул. 'Стамболийски' 74
ИЗПРАТИ ЗАПИТВАНЕ
ИЗПРАТИ ЗАПИТВАНЕТО

Продава КЪЩА
град София, Драгалевци
Обява: 1j175990922928335

670 000 €
1 310 406.10 лв.
История на цената
(2 204 €, 4 310.65 лв./m2)

Цената е без ДДС
ЗАПАЗИ ОБЯВАТА

Местоположение: град София, Драгалевци

Допълнителни данни за имотите в района и сравнение с други райони

Покажи

Период

и 4 месеца

* Средните цени са определени чрез медианна стойност