Обяви За нас Контакти
Продава 3-СТАЕН
град София, Малинова долина
208 000 €
406 812.64 лв.

(1 944 €, 3 802.13 лв./m2)
Цената е с включено ДДС
История на цената
Коригирана в 6:42 на 17 февруари, 2026 год.
Обявата е посетена 57 пъти.
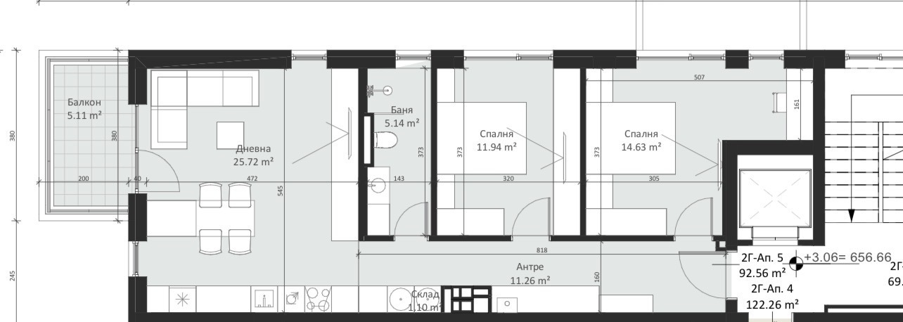
Площ:
107 m2
Етаж:
2-ри от 4
Газ:
ДА
Строителство:
Тухла, Ще бъде въведен в експлоатация 2027 г.

Описание на имота:


Тристаен апартамент в новострояща се сграда до София ринг мол и околовръстен път. Застроената площ от 92 кв.м. е разпределена между входно антре, просторна дневна с кухненски бокс и балкон, две самостоятелни спални, Баня/wc. Северозападно изложение. Сградата е част от затворен комплекс. Опция за закупуване на подземно паркомясто. За огледи 0988870990
Особености
Тухла
Асансьор
Видео наблюдение
Контрол на достъпа
В затворен комплекс
За контакт:
0988870990
Агенция:
РИЪЛ ИСТЕЙТ ЕЛ ЕКС
0879383788
РИЪЛ ИСТЕЙТ ЕЛ ЕКС logo
Медал за прослужено време
В imot.bg от 2008 г.
reallx.imot.bg
Адрес:
област София, гр. София, гр. София, бул. 'Стамболийски' 74
ИЗПРАТИ ЗАПИТВАНЕ
ИЗПРАТИ ЗАПИТВАНЕТО

Продава 3-СТАЕН
град София, Малинова долина
Обява: 1c174884851099032

208 000 €
406 812.64 лв.
История на цената
(1 944 €, 3 802.13 лв./m2)

Цената е с включено ДДС
ЗАПАЗИ ОБЯВАТА

Местоположение: град София, Малинова долина

Допълнителни данни за имотите в района и сравнение с други райони

Покажи

Период

и 3 месеца

* Средните цени са определени чрез медианна стойност